Продам 2-х комнатную квартиру / ДДЕГРЭС ( р-н Автошколы) (№ 213-139-791)

Ціна: 39 900 $
Характеристики
| Ціна: | 39 900 $ |
|---|---|
| № об'єкта: | 213-139-791 |
| Кімнат: | 2 розд |
| Поверх: | 2 / 5 |
| Площа: | 101 / - / 7 м2 |
| Санвузол: | сумісний |
| Балкон: | лоджія |
| Отопление : | Индивидуальное электро |
Адреса: Дніпропетровська, Кам'янське, Кам'янське, Арсеничева ( Васильевская)
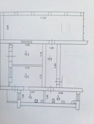
Продается просторная двухкомнатная квартира в районе ДДЕГРЭС города Каменское. Расположена на втором этаже пятиэтажного кирпичного дома сталинской постройки. Общая площадь — 101 кв.м, кухня — 7 кв.м. Комнаты раздельные, санузел совмещён.
Квартира оснащена большой открытой террасой и двумя застеклёнными металлопластиковыми лоджиями. Вся мебель и техника остаются новым владельцам в подарок. Установлен электрический водонагреватель объёмом 80 литров, а также индивидуальные счётчики на воду и двухтарифный электросчётчик на каждую комнату.
Отопление — индивидуальное электрическое. В квартире выполнен авторский ремонт, предусмотрены все необходимые удобства: встроенная кухня, душевая кабина, гардеробная, кондиционер, решётки на окнах, а также предусмотрено место для парковки.
Дом подключён к центральной канализации, есть асфальтированный подъезд, электричество, и вывоз мусора. В шаговой доступности находятся школа, детский сад, аптека, банки, магазины, ТРЦ и остановка транспорта. До реки — менее километра. В подъезде установлены поручни для удобства.
Квартира свободна, без долгов, документы готовы к продаже. Приглашаем на просмотр. Цена договорная













