Продам 2-х комнатную квартиру/ Днепрострой (№ 213-185-154)

Ціна: 14 000 $
Характеристики
| Ціна: | 14 000 $ |
|---|---|
| № об'єкта: | 213-185-154 |
| Кімнат: | 2 суміж |
| Поверх: | 1 / 3 |
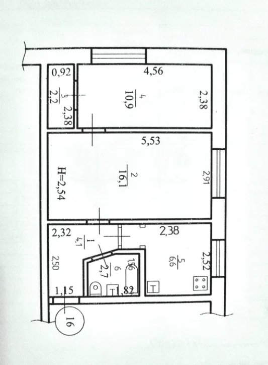
| Площа: | 42.60 / - / 6.60 м2 |
| Санвузол: | сумісний |
| Отопление : | Централизованное |
Адреса: Дніпропетровська, Кам'янське, Кам'янське, Дніпробуд
Продаётся 2-комнатная квартира в районе Днепростроя (ул. Энергетиков).
Общая площадь – 42,6 м², кухня – 6,6 м². Дом кирпичный, с централизованным отоплением и удобной планировкой.
- В квартире выполнен частичный косметический ремонт – обновлены кухня, коридор и санузел.
- Установлены новые двухкамерные стеклопакеты (2023 года).
- В комнатах стоят чугунные батареи на 13 и 16 секций – зимой всегда тепло и комфортно.
- Рабочая газовая колонка обеспечивает горячую воду.
Состояние жилое: паркетный пол, комнаты требуют освежающего ремонта. В спальне есть вместительный погреб для хранения овощей и консервации, а также кладовая.
Из удобств – ванна, хозяйственное помещение, центральная канализация, электричество, газ, водопровод и асфальтированный подъезд. В шаговой доступности река.
В квартире остались некоторые мебельные предметы советского периода, что может быть полезно на первое время.
Будни – с 17:00 до 20:00
Выходные – с 9:00 до 20:00




