Продам 2-х комнатную квартиру / Черемушки (№ 213-279-018)
Ціна: 13 000 $

В. Стуса, Кам'янське, Кам'янське, Дніпропетровська, Черемушки
Характеристики
| Ціна: | 13 000 $ |
|---|---|
| № об'єкта: | 213-279-018 |
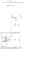
| Кімнат: | 2 см/рз |
| Поверх: | 5 / 5 |
| Площа: | 45 / - / 6 м2 |
| Санвузол: | роздільний |
| Балкон: | балкон |
| Отопление : | Централизованное |
| Государственные программы: | требует уточнения |
Опис
Продаю 2к Квартиру на Нових Черемушках по пр. Василя Стуса.
Квартира Світла й Тепла. Опалення централізоване. Лічильник встановлено тільки на електроенергію.
Є газова плита. Найкращий район міста.
Все поруч, все як ви любите : супермаркети, ринок,зупинки громадського транспорту, школа, дитячий садок - ВСЕ це в пішій доступності.
Вид обєкта: Вторинний ринок;
Тип будинку: Хрущовка;
Планування: Суміжна, прохідна;
Cанвузол: Роздільний;
Опалення: Централізоване;
Меблювання: Так;
Побутова техніка: Холодильник, Варильна панель, Духова шафа, Плита;
Мультимедіа: Телевізор, Wi-Fi;
Комунікації: Асфальтована дорога, Центральна каналізація, Електрика, Вивіз відходів, Газ, Центральний водопровід;
Інфраструктура (до 500 метрів): Відділення банку, банкомат, Аптека, Лікарня, поліклініка, Дитячий садок, Ринок, Дитячий майданчик, Відділення пошти, Ресторан, кафе, Школа, Магазин, кіоск, Супермаркет, ТРЦ, Зупинка транспорту;










